









物件価格:2480万円
物件所在地:愛知県知多郡南知多町大字豊浜字尾ヶ瀬14-1、15-1、21-3
最寄り駅:名鉄知多新線「内海」駅 距離8000m、バス停「初神口」停歩8分 初神口
土地面積826.78坪と広々!
作業場におすすめです!
| 土地権利 | 所有権 |
|---|---|
| 土地計測方法 | 公簿 |
| 土地面積 | 2733.19㎡ 坪 |
| 私道負担の有無 | 無 |
| 私道面積 | ㎡ |
| 都市計画 | 市街化区域 |
| 用途地域 | 第一種住居地域 |
| 建ぺい率/容積率 | 60%/200% |
| 地目 | 宅地 |
| 最適用途 | |
| 地勢 | |
| 小学校区 | 豊浜小学校 |
| 中学校区 | 南知多中学校 |
| その他法令上の制限 | |
| 椄道状況 | 西側8.0m公道 接面21.5m |
| 国土法に関する事項 | |
| 角地/現状 | /建物有 |
| 引き渡し条件 | 現況渡し |
| 引き渡し日 | 相談 |
| 設備 | プロパンガス、電気、上水道、側溝 |
| 環境 | |
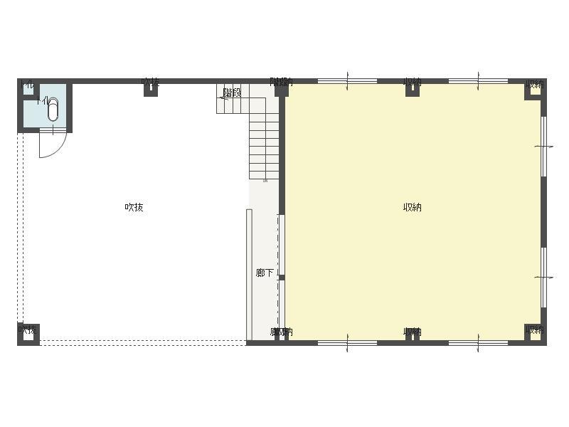
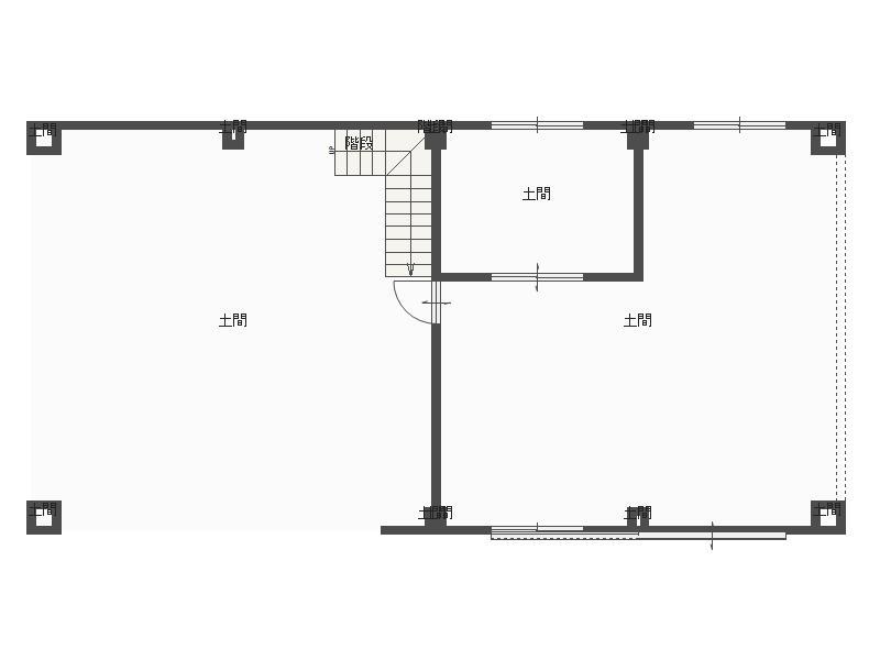
| 特記事項 | 道路沿いに倉庫と東側にビニールハウス有り。 |
| 備考 | |
| 取引態様 | 媒介 |
外断熱・エアサイクルの注文住宅の家を建てるなら森政まで。自由設計の注文住宅・リフォーム、リノベーション・外構などを手掛ける工務店です。
【施工エリア】愛知県(常滑市、半田市、阿久比町、東海市、大府市、知多市、東浦町、武豊町、美浜町、南知多町)
※その他の地域も、相談内容により承ります。まずはお気軽にお問い合わせください。
-
有限会社 森政
〒479-0043 常滑市古社20番地の7



































